百家乐app
百家乐app
主页
百家乐app 概况
百家乐app 简介
历史沿革
百家乐app 领导
机构设置
文化建设
制度建设
师资队伍
杰出人才
教师名录
教授/研究员
副教授/副研究员
讲师
博士后工作
学科建设
学科介绍
学位点建设
科学研究
科研平台
科研团队
科研成果
科研项目
科研设备
人才培养
本科生培养
研究生培养
留学生培养
学生工作
思政教育
学风建设
管理服务
团学工作
研会工作
科创竞赛
招生就业
本科生招生
研究生招生
国际合作班招生
就业信息
人才招聘
专任教师
师资博士后
党群工作
组织建设
党建动态
工会工作
关工委工作
退管委工作
校友之声
校友动态
校友风采
校友名录
校友捐赠
主页
百家乐app 概况
+
百家乐app 简介
历史沿革
百家乐app 领导
机构设置
文化建设
制度建设
师资队伍
+
杰出人才
教师名录
教授/研究员
副教授/副研究员
讲师
博士后工作
学科建设
+
学科介绍
学位点建设
科学研究
+
科研平台
科研团队
科研成果
科研项目
科研设备
人才培养
+
本科生培养
研究生培养
留学生培养
学生工作
+
思政教育
学风建设
管理服务
团学工作
研会工作
科创竞赛
招生就业
+
本科生招生
研究生招生
国际合作班招生
就业信息
人才招聘
+
专任教师
师资博士后
党群工作
+
组织建设
党建动态
工会工作
关工委工作
退管委工作
校友之声
+
校友动态
校友风采
校友名录
校友捐赠
您所在的位置:
百家乐app
» 百家乐app 新闻
我校研究生支教团净水计划正式启动
作者:
来源:百家乐app下载
2015-07-08
访问量:
我校研究生支教团在从
2014
年起在贵州省黔南布依族苗族自治州长顺县服务,两年来我校支教团成员先后服务于长顺县营盘中学、白云山中学、长顺二中、睦化中学以及睦化中心小学,足迹遍布长顺县
10
多个乡镇。他们在兢兢业业做好自己支教工作的同时,积极拓展服务项目,用自己的知识和思想去帮助解决学校的实际问题,先后完成了腾讯益行运动场、多媒体彩虹教室、睦化小学简易食堂等多个公益项目,累计募集捐款捐物达
40
余万元。
2014
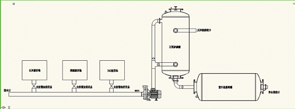
年,我校两名支教团成员服务于营盘中学期间,了解到当地学校学生的饮用水大多取自地表水,并储存在水窖中,水质较差,学生们经常直接使用会对他们的健康产生不良的影响,支教团成员随即和学校取得联系,以营盘中学的具体情况为例,依托我校百家乐app 专业技术研制出了适合当地水质净化的设备。从去年
7
月份,百家乐app 王志强等师生赴营盘中学实地考察、化验水质,经过一年的净水方案验证和设备加工,到今年
7
月将净水设备安装在营盘中学并投入使用,启动了河北工业大学研究生支教团净水计划的第一站。校党委副书记郭健同志参加了净水计划的启动仪式,同时郭健十分关心我校研究生支教团成员在长顺县的学习工作生活情况,专程驱车来到位于大山深处的睦化中心小学和睦化中学,实地查看支教团成员赵轩、田家益同学工作的地方和支教团援建的简易食堂,并在睦化中心小学举办了研究生支教工作座谈会。
校党委副书记郭健参加
净水计划的启动仪式
研究生支教团座谈会
我校研制的净水设备安装在营盘中学并投入使用
净水设备原理图
分享
TOP